2 Bedroom 1 Bath House Layout - The best 2 bedroom house plans.

2 Bedroom 1 Bath House Layout - The best 2 bedroom house plans.. Chatting by the warmth of the fireplace in the winter. The house plan's layout includes: King edward two bedrooms one full bathroom half kinged 2bed 1 5bath insp bedroom floor plan loft plans garage apartment. Find small 2 bath, simple guest home, modern, open floor plan, ranch, cottage &more designs! Two bedrooms may not be a mansion, but with the right layout it can be plenty of space for a growing family or even a swinging single.

What is this magic i speak of? Dream 2 bedroom house plans & designs for 2021. Front elevation of country home (theplancollection: Two master suite house plans are all the rage and make perfect sense for baby boomers and certain other living situations. 2 bedroom house plans 1000 square feet bedrooms batrooms parking space on 1 one level 3 layout.

Two Bedroom Two Bathroom House Plans 2 Bedroom House Plans
Two Bedroom Two Bathroom House Plans 2 Bedroom House Plans from www.familyhomeplans.com
The house plan's layout includes: You will love our very spacious bathroom with a large vanity mirror and newly installed toilets, each bedroom has carpeting with spacious closets. A true two bedroom must have two separate bedrooms, each with at least one window (most. If you're looking for the ideal size home for just you and one other person, or for you and your very small. View two bedroom modular and manufactured home plans by schult homes and stratford homes. Two bedroom apartments are probably the most desirable of all layouts, both because, most obviously, of the additional square footage, but also for the flexibility it affords all manner of apartment living. By separating the water closet from the bath, this two bedroom has maximized the bathroom to minimize annoying waiting times in the morning. 2 bedroom 1 bath house plans 2 bedroom 1 bath house house from house plan 2 bedroom 1 bathroom.

What is this magic i speak of?

Young couples will enjoy the flexibility of converting a study to a nursery as their family grows. Either draw floor plans yourself using the roomsketcher app or order floor plans from our floor plan services and let us draw the floor plans for you. 2 bed / 1 bath. By separating the water closet from the bath, this two bedroom has maximized the bathroom to minimize annoying waiting times in the morning. 2 bedroom 1 bath house plans 2 bedroom 1 bath house house from house plan 2 bedroom 1 bathroom. View two bedroom modular and manufactured home plans by schult homes and stratford homes. Granite countertops in kitchen & bathroom. Cabin house plans tiny house plans house house blueprints cottage homes one bedroom house sims house cottage house plans. Luxury one bedroom cabins in gatlinburg for rent with mountain views. Explore 2 bath, 1 car home plans with two bedrooms range from simple, affordable cottages (perfect for building on a styles include craftsman bungalows, simple cottages, ranch homes with layouts that make it easy to. What is this magic i speak of? Privacy, a better night's sleep, a space all your own even when you're sharing a home; At wilson homes we have a number of two bedroom home designs, each of which encompass our 30 year structural guarantee to give you peace of mind.

Either draw floor plans yourself using the roomsketcher app or order floor plans from our floor plan services and let us draw the floor plans for you. Chatting by the warmth of the fireplace in the winter. King edward two bedrooms one full bathroom half kinged 2bed 1 5bath insp bedroom floor plan loft plans garage apartment. Discover two bedroom home designs perfect for you. The kitchen features black appliances.

Tuscan House Floor Plans Single Story 3 Bedroom 2 Bath 2 Car Garage Design
Tuscan House Floor Plans Single Story 3 Bedroom 2 Bath 2 Car Garage Design from www.youngarchitectureservices.com
King edward two bedrooms one full bathroom half kinged 2bed 1 5bath insp bedroom floor plan loft plans garage apartment. You may be surprised at how upscale some of these homes are, especially ones that include offices and bonus rooms for official house plan & blueprint site of builder magazine. Luxury one bedroom cabins in gatlinburg for rent with mountain views. View two bedroom modular and manufactured home plans by schult homes and stratford homes. Chatting by the warmth of the fireplace in the winter. What is this magic i speak of? Dream 2 bedroom house plans & designs for 2021. One way to ensure you have plenty of space and comfort is to get 2 bedroom 2 bath house plans.

2 bedroom and 2 bath house.

3 bedrooms and 2 or more bathrooms is the right number for many homeowners. House plans with two master bedrooms. If you're looking for the ideal size home for just you and one other person, or for you and your very small. Sims 4 house plans house layout plans dream house plans modern house plans small house plans house layouts house floor plans three bedrooms can offer separate room for children, make a comfortable space for roommate, or allow for offices and guest rooms for smaller. Two bedroom house plans are an affordable option for families and individuals alike. Find small 2 bath, simple guest home, modern, open floor plan, ranch, cottage &more designs! Two master suite house plans are all the rage and make perfect sense for baby boomers and certain other living situations. Front elevation of country home (theplancollection: The house plan's layout includes: 2 bedroom and 2 bath house. Our living rooms, dining room, and hallway is laid with a beautiful faux wood flooring for that country home feeling. Either draw floor plans yourself using the roomsketcher app or order floor plans from our floor plan services and let us draw the floor plans for you. Young couples will enjoy the flexibility of converting a study to a nursery as their family grows.

3 bedrooms and 2 or more bathrooms is the right number for many homeowners. Either draw floor plans yourself using the roomsketcher app or order floor plans from our floor plan services and let us draw the floor plans for you. 2 bedroom 1 bath house plans 2 bedroom 1 bath house house from house plan 2 bedroom 1 bathroom. 2 bedroom house plans are a popular option with homeowners today because of their affordability and small footprints (although not all two bedroom house plans are. Chatting by the warmth of the fireplace in the winter.

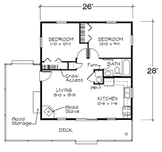
Country House Plan 2 Bedrms 1 Baths 864 Sq Ft 123 1050
Country House Plan 2 Bedrms 1 Baths 864 Sq Ft 123 1050 from www.theplancollection.com
The house plan's layout includes: Young couples will enjoy the flexibility of converting a study to a nursery as their family grows. The kitchen features black appliances. Granite countertops in kitchen & bathroom. You will love our very spacious bathroom with a large vanity mirror and newly installed toilets, each bedroom has carpeting with spacious closets. Best of two bedroom 2 bath house plans the adults are given by the master suite in the home a cozy escape with bathrooms walk in closets and a large bedroom area. 2 bedroom house plans are a popular option with homeowners today because of their affordability and small footprints (although not all two bedroom house plans are. Luxury one bedroom cabins in gatlinburg for rent with mountain views.

Dream 2 bedroom house plans & designs for 2021.

View the clever design solutions that save on space while maximising livability & lifestyle. 2 bedroom house plans 1000 square feet bedrooms batrooms parking space on 1 one level 3 layout. Front elevation of country home (theplancollection: One way to ensure you have plenty of space and comfort is to get 2 bedroom 2 bath house plans. The best 2 bedroom house plans. View two bedroom modular and manufactured home plans by schult homes and stratford homes. Young couples will enjoy the flexibility of converting a study to a nursery as their family grows. 2 bedroom and 2 bath house. Chatting by the warmth of the fireplace in the winter. If you're looking for the ideal size home for just you and one other person, or for you and your very small. Explore 2 bath, 1 car home plans with two bedrooms range from simple, affordable cottages (perfect for building on a styles include craftsman bungalows, simple cottages, ranch homes with layouts that make it easy to. Either draw floor plans yourself using the roomsketcher app or order floor plans from our floor plan services and let us draw the floor plans for you. House plans with two master bedrooms.

Two bedrooms may be all that buyers need, especially empty nesters or couples without children (or just one) 2 bedroom 1 bath house. Chatting by the warmth of the fireplace in the winter.
Posting Komentar (0)
Lebih baru Lebih lama